NCC 2022 Volume One - Building Code of Australia Class 2 to 9 buildings
Classification
Building class 1a Building class 1b Building class 2 Building class 3 Building class 4 Building class 5 Building class 6 Building class 7a Building class 7b Building class 8 Building class 9a Building class 9b Building class 9c Building class 10a Building class 10b Building class 10c

Filter

Classification
Building class 1a Building class 1b Building class 2 Building class 3 Building class 4 Building class 5 Building class 6 Building class 7a Building class 7b Building class 8 Building class 9a Building class 9b Building class 9c Building class 10a Building class 10b Building class 10c

F6

Part F6 Light and ventilation

Part F6 Light and ventilation

Introduction to this Part

This Part is intended to ensure that building occupants have access to natural and artificial lighting, and fresh air, to prevent illness, injury or loss of amenity. This part also includes provisions for the location of sanitary compartments to reduce health risks and the spread of odours, airlocks and carpark and kitchen local exhaust ventilation.

Objectives

The Objective of this Part is to—

  1. safeguard occupants from injury, illness or loss of amenity due to—
    1. isolation from natural light; and
    2. lack of adequate artificial lighting; and
  2. safeguard occupants from illness or loss of amenity due to lack of air freshness.

F6O1 Objective

F6O1 aims to safeguard occupants from illness, injury or loss of amenity due to inadequate lighting or lack of ventilation within a building.

Functional Statements

A space within a building used by occupants is to be provided with openings to admit natural light consistent with its function or use.

F6F1 Natural light

F6F1 requires that a buildingspace must have openings providing enough natural lightfor a room commensurate with its purpose.

A space within a building used by occupants is to be provided with artificial lighting consistent with its function or use which, when activated in the absence of suitable natural light, will enable safe movement.

F6F2 Artificial light

F6F2 mandates that a space within a building used by occupants must be provided with artificial lighting suitable for its intended function or use. The provision aims to ensure that in the absence of adequate natural light, artificial lighting will facilitate safe movement within the space.

A space used by occupants within a building is to be provided with adequate ventilation consistent with its function or use.

F6F3 Ventilation

F6F3 requires that a building space used by occupants must have ventilation that provides adequate air, so the room can fulfil its purpose. “Adequate air” includes both quantity and quality.

The building and its location may impose constraints on the quality of the ventilation air.

Examples

A building’s location may impose constraints on the quality of the ventilation air such as when the building is in a central business district. Here, even locating intakes at the highest point on the building could still draw in significant quantities of vehicle exhaust fumes. The air may not be totally “fresh”. None the less, efforts must be made to make sure the air is of adequate quality.

Ventilation standards are influenced by many factors, including:

  • the number of people being provided with air;
  • activities in the building which might lead to a build-up of toxic gases;
  • climatic conditions; and
  • the distribution of ventilation openings.

Some of the primary problems, which a ventilation system must attempt to overcome, include:

  • excessive heat;
  • excessive humidity; and
  • offensive odours.

Performance Requirements

Sufficient openings must be provided and distributed in a building, appropriate to the function or use of that part of the building so that natural light, when available, provides an average daylight factor of not less than 2%.

Applications

F6P1 only applies to a Class 2, 3 or 9 building, or a Class 4 part of a building.

F6P1 Natural lighting

F6P1 deals with natural light in a Class 2, 3 or 9 building, or a Class 4 part of a building.

F6P1 nominates a minimum average daylight factor for rooms provided with natural light. Note that Verification Method F6V3 provides a method by which the average daylight factor may be calculated.

The level of natural light must be appropriate to the function of each part of the building (this differs from the F6P2 requirement for artificial light).

Artificial lighting must be installed to provide an illuminance of not less than 20 lux appropriate to the function or use of the building to enable safe movement by occupants.

F6P2 Artificial lighting

F6P2 relates required lighting levels to the use of each part of the building. Unlike F6P1 with regard to natural light, F6P2 does not include the concept of distribution.

The level of artificial light must be appropriate to the use of the building to enable safe movement by occupants (this differs from the F6P1 requirement for natural light). For example, in a movie theatre a lower level of lighting may be appropriate while a movie is being screened, however at the beginning and end of the movie, when occupants are entering and exiting the theatre, the minimum lighting level of 20 lux may be appropriate.

A space in a building used by occupants must be provided with means of ventilation with outdoor air which will maintain adequate air quality.

F6P3 Outdoor air supply

F6P3 requires a building’s ventilation system to include the supply of outdoor air.

A mechanical air-handling system installed in a building must control—

  1. the circulation of objectionable odours; and
  2. the accumulation of harmful contamination by micro-organisms, pathogens and toxins.

F6P4 Mechanical ventilation to control odours and contaminants

Where a mechanical air-handling system is installed, F6P4 requires it to achieve control with regard to the following:

  • smells considered objectionable (including food, cooking and toilet odours); and
  • the accumulation of germs, harmful microbes, other disease-causing agents, and poisons.

Contaminated air must be disposed of in a manner which does not unduly create a nuisance or hazard to people in the building or other property.

F6P5 Disposal of contaminated air

F6P5 requires that any contaminated air be disposed of so that it does not cause any nuisance or hazard to:

  • occupants (of either the subject building, or any other building);
  • people on neighbouring allotments; or
  • people on a road.

Verification Methods

For a Class 2, 3, 5, 6, 9b or 9c building or Class 4 part of a building, compliance with F6P3 and F6P4(a) is verified when it is determined that the building under typical conditions in use is provided with sufficient ventilation with outdoor air such that contaminant levels do not exceed the limits specified in Table F6V1.

Table F6V1 Maximum contaminant limits for acceptable indoor air quality
Pollutant Averaging time Maximum air quality value
Carbon dioxide, CO2 8 hours 850 ppm Note 1
Carbon monoxide, CO 15 minutes 90 ppm
Carbon monoxide, CO 30 minutes 50 ppm
Carbon monoxide, CO 1 hour 25 ppm
Carbon monoxide, CO 8 hours 10 ppm
Formaldehyde, CH2O 30 minutes 0.1 mg/m3
Nitrogen dioxide, NO2 1 year 40 μg/m3 (0.0197 ppm) Note 2
Nitrogen dioxide, NO2 1 hour 200 μg/m3 (0.0987 ppm)
Ozone, O3 8 hour, daily maximum 100 μg/m3 (0.0473 ppm)
Particulate matter, PM2.5 1 year 10 μg/m3
Particulate matter, PM2.5 24 hour (99th percentile) 25 μg/m3
Particulate matter, PM10 1 year 20 μg/m3
Particulate matter, PM10 24 hour (99th percentile) 50 μg/m3
Total volatile organic compounds 1 hour 500 μg/m3
Table Notes
  1. Based on body odour metric (i.e. 450 ppm above ambient CO2 level of 400 ppm and demand control ventilation provisions in AS 1668.2).
  2. Based on pressure of 101.325 kPa and temperature of 25°C (i.e. the conversion is mg/m3 = ppm (molecular weight/24.4)).

F6V1 Verification of suitable indoor air quality

F6V1 is a means of verifying if a proposed ventilation system for a Class 2, 3, 4, 6, 9b or 9c building achieves the minimum level of ventilation required by F6P3 and F6P4(a).

It is not compulsory for a designer to use F6V1. The designer has the choice of using:

If F6V1 is used to verify compliance, it must be demonstrated that the building is sufficiently ventilated with outdoor air such that contaminant levels do not exceed the limits in Table F6V1.

For a Class 7a building, compliance with F6P3 and F6P4(a) is verified when it is determined that the building is provided with sufficient ventilation with outdoor air such that carbon monoxide exposure levels do not exceed the limits specified in Table F6V2.

Table F6V2 Maximum carbon monoxide exposure for carparks
Concentration (ppm) Total exposure duration per day
100 Not to be exceeded
90 15 minutes
60 1 hour
30 8 hours
Table Notes

Various government work health and safety regulations specify workplace exposure limits for airborne contaminants in the workplace.

F6V2 Verification of suitable indoor air quality for carparks

F6V2 is a means of verifying if a proposed ventilation system for a Class 7a building achieves the minimum level of ventilation required by F6P3 and F6P4(a).

It is not compulsory for a designer to use F6V2. The designer has the choice of using:

  • F6V2 to verify that the proposal achieves F6P3 and F6P4(a);
  • the Deemed-to-Satisfy Provisions of F6D11; or
  • another means of verifying that F6P3 and F6P4(a) will be achieved.

If F6V2 is used to verify compliance, it must be demonstrated that the building is sufficiently ventilated with outdoor air such that carbon monoxide exposure levels do not exceed the limits in Table F6V2.

Compliance with F6P1 is verified for the provision of natural light when the average daylight factor for each window is determined in accordance with the formula:

Average Daylight Factor=WATθ(1R2)MathType@MTEF@5@5@+= feaahqart1ev3aqatCvAUfeBSjuyZL2yd9gzLbvyNv2CaerbuLwBLn hiov2DGi1BTfMBaeXatLxBI9gBaerbd9wDYLwzYbItLDharqqtubsr 4rNCHbGeaGqiVu0Je9sqqrpepC0xbbL8F4rqqrFfpeea0xe9Lq=Jc9 vqaqpepm0xbba9pwe9Q8fs0=yqaqpepae9pg0FirpepeKkFr0xfr=x fr=xb9adbaqaaeGaciGaaiaabeqaamaabaabaaGcbaGaaeyqaiaabA hacaqGLbGaaeOCaiaabggacaqGNbGaaeyzaiaabccacaqGebGaaeyy aiaabMhacaqGSbGaaeyAaiaabEgacaqGObGaaeiDaiaabccacaqGgb GaaeyyaiaabogacaqG0bGaae4BaiaabkhacqGH9aqpdaWcaaqaaiaa dEfaaeaacaWGbbaaamaalaaabaGaamivaiabeI7aXbqaaiaacIcaca aIXaGaeyOeI0IaamOuamaaCaaaleqabaGaaGOmaaaakiaacMcaaaaa aa@546B@
, where—

  1. WMathType@MTEF@5@5@+= feaahqart1ev3aqatCvAUfeBSjuyZL2yd9gzLbvyNv2CaerbuLwBLn hiov2DGi1BTfMBaeXatLxBI9gBaerbd9wDYLwzYbItLDharqqtubsr 4rNCHbGeaGqiVu0Je9sqqrpepC0xbbL8F4rqqrFfpeea0xe9Lq=Jc9 vqaqpepm0xbba9pwe9Q8fs0=yqaqpepae9pg0FirpepeKkFr0xfr=x fr=xb9adbaqaaeGaciGaaiaabeqaamaabaabaaGcbaGaam4vaaaa@36D0@  
    = the net area of the light transmitting window (m2); and
  2. AMathType@MTEF@5@5@+= feaahqart1ev3aqatCvAUfeBSjuyZL2yd9gzLbvyNv2CaerbuLwBLn hiov2DGi1BTfMBaeXatLxBI9gBaerbd9wDYLwzYbItLDharqqtubsr 4rNCHbGeaGqiVu0Je9sqqrpepC0xbbL8F4rqqrFfpeea0xe9Lq=Jc9 vqaqpepm0xbba9pwe9Q8fs0=yqaqpepae9pg0FirpepeKkFr0xfr=x fr=xb9adbaqaaeGaciGaaiaabeqaamaabaabaaGcbaGaamyqaaaa@36BA@  
    = the total area of the internal wall, floor and ceiling surfaces (m2); and
  3. TMathType@MTEF@5@5@+= feaahqart1ev3aqatCvAUfeBSjuyZL2yd9gzLbvyNv2CaerbuLwBLn hiov2DGi1BTfMBaeXatLxBI9gBaerbd9wDYLwzYbItLDharqqtubsr 4rNCHbGeaGqiVu0Je9sqqrpepC0xbbL8F4rqqrFfpeea0xe9Lq=Jc9 vqaqpepm0xbba9pwe9Q8fs0=yqaqpepae9pg0FirpepeKkFr0xfr=x fr=xb9adbaqaaeGaciGaaiaabeqaamaabaabaaGcbaGaamivaaaa@36CD@  
    = the diffuse light transmittance of the window; and
  4. θMathType@MTEF@5@5@+= feaahqart1ev3aqatCvAUfeBSjuyZL2yd9gzLbvyNv2CaerbuLwBLn hiov2DGi1BTfMBaeXatLxBI9gBaerbd9wDYLwzYbItLDharqqtubsr 4rNCHbGeaGqiVu0Je9sqqrpepC0xbbL8F4rqqrFfpeea0xe9Lq=Jc9 vqaqpepm0xbba9pwe9Q8fs0=yqaqpepae9pg0FirpepeKkFr0xfr=x fr=xb9adbaqaaeGaciGaaiaabeqaamaabaabaaGcbaGaeqiUdehaaa@37AA@  
    = visible sky angle in degrees, measured in a vertical plane normal to and from the centre of the window; and
  5. RMathType@MTEF@5@5@+= feaahqart1ev3aqatCvAUfeBSjuyZL2yd9gzLbvyNv2CaerbuLwBLn hiov2DGi1BTfMBaeXatLxBI9gBaerbd9wDYLwzYbItLDharqqtubsr 4rNCHbGeaGqiVu0Je9sqqrpepC0xbbL8F4rqqrFfpeea0xe9Lq=Jc9 vqaqpepm0xbba9pwe9Q8fs0=yqaqpepae9pg0FirpepeKkFr0xfr=x fr=xb9adbaqaaeGaciGaaiaabeqaamaabaabaaGcbaGaamOuaaaa@36CB@  
    = the area-weighted average reflectance of area
    AMathType@MTEF@5@5@+= feaahqart1ev3aqatCvAUfeBSjuyZL2yd9gzLbvyNv2CaerbuLwBLn hiov2DGi1BTfMBaeXatLxBI9gBaerbd9wDYLwzYbItLDharqqtubsr 4rNCHbGeaGqiVu0Je9sqqrpepC0xbbL8F4rqqrFfpeea0xe9Lq=Jc9 vqaqpepm0xbba9pwe9Q8fs0=yqaqpepae9pg0FirpepeKkFr0xfr=x fr=xb9adbaqaaeGaciGaaiaabeqaamaabaabaaGcbaGaamyqaaaa@36BA@  
    .

Applications

F6V3 only applies to—

  1. habitable rooms of Class 2 buildings and Class 4 parts of buildings; and
  2. bedrooms and dormitories of Class 3 buildings; and
  3. rooms used for sleeping purposes in Class 9a and 9c buildings; and
  4. general purpose classrooms in primary and secondary school and playrooms or the like for the use of children in an early childhood centre in Class 9b buildings.

F6V3 Verification of suitable provision of natural light

The average daylight factor (ADF) is used as the measure of the general illumination from outdoor natural light within a room. Where two or more windows in a room face different obstructions, or differ in transmittance, the ADF should be found separately for each window by adding the ADF for each window together to get the total ADF for the room.

W is the net area of the glazing panel (m2). This excludes the glazing frame and only includes the transparent or translucent elements.

A is the total area of the internal surfaces (m2). This includes the total area ofthe ceiling, floor andwalls, including windows.

T is the diffuse light transmittance of the glazing. The measurement of light transmittance is specified in the Technical Protocols and Procedures Manual for Energy Rating of Fenestration Products of the Australian Fenestration Rating Council. Typical examples of light transmittance of glazing materials are given in the table below.

Table F6V3a: Typical light transmittance of glazing materials

MaterialDiffuse light transmittance
Clear 6mm glass0.87
Tinted 6mm glass (bronze)0.50
Tinted 6mm glass (grey)0.44
Tinted 6mm glass (green)0.75
Strongly reflecting 6mm glass0.78
Double glazed unit (x2 6 mm clear glass)0.76

θ is visible sky angle in degrees, measured in a vertical plane normal to the glass from the centre of the window (i.e. the window reference point) as shown in the figure below. The determination of this angle is to take into account objects such as shading projections, eaves, window reveals, fences, adjoining buildings, structures and the like. Figure F6V3 shows an example of a scenario when θ is measured.

 Figure F6V3: Angle of visible sky

Image
 Figure F6V3:	Angle of visible sky

R is the area-weighted average reflectance area of the internal surfaces. Typical examples of reflectance of light values of materials are given in Table F6V3b.

Table F6V3b: Typical reflectance of light values of materials

MaterialReflectance
Paving0.20
Earth0.20
Granite0.20
Brickwork (red)0.30
Concrete0.40
Carpet (cream)0.40
Carpet (deep colours)0.10
Wood (unfinished pine)0.20
Paint (white)0.85
Paint (cream)0.81
Paint (light grey)0.68
Paint (mild grey)0.45

Deemed-to-Satisfy Provisions

(1) Where a Deemed-to-Satisfy Solution is proposed, Performance Requirements F6P1 to F6P5 are satisfied by complying with—

  1. F6D2 to F6D12; and
  2. for a building containing an occupiable outdoor area, Part G6; and
  3. for farm buildings and farm sheds, Part I3.

(2) Where a Performance Solution is proposed, the relevant Performance Requirements must be determined in accordance with A2G2(3) and A2G4(3) as applicable.

To clarify that Part F6, and Parts G6 and I3, if applicable, will satisfy the requirements of F6P1 to F6P5.

F6D1 Deemed-to-Satisfy Provisions

Where a solution is proposed to comply with the Deemed-to-Satisfy Provisions, F6D1 clarifies that compliance with F6D2 to F6D12, and Parts G6 and I3, if applicable, will achieve compliance with F6P1 to F6P5.

Where a Performance Solution is proposed, the relevant Performance Requirements must be determined in accordance with A2G2(3) and A2G4(3) as applicable. (See commentary on Part A2).

Natural light must be provided in:

  1. A Class 2 building and a Class 4 part of a building — to all habitable rooms.
  2. A Class 3 building — to all bedrooms and dormitories.
  3. Class 9a and 9c buildings — to all rooms used for sleeping purposes.
  4. A Class 9b building — to all general purpose classrooms in primary or secondary schools and all playrooms or the like for the use of children in an early childhood centre.

To specify the rooms in various classes of buildings where natural light is required.

F6D2 Provision of natural light

See F6F1 and F6P1 for information on the reasonsfor the BCA natural light provisions.

The provision of natural light is substantially a health and amenity issue. It is considered of particular importance in all “living” and “sleeping” areas in residential buildings occupied by people for an extended period of time. The BCA consistently assumes that this is the case with Class 2 buildings and Class 4 parts, but not with Class 3 buildings.

Occupants of Class 3 and Class 9a buildings do not reside in the same building for an extended period of time. F6D2 extends this assumption to the “living” areas (shared and unshared) of such buildings. For this reason, the BCA only requires the provision of natural light to sleeping areas in Class 3 and Class 9a buildings.

F6D2(b) assumes that in Class 3 buildings the occupants spend more time in their “sleeping” accommodation than they do in “living” areas. This is usually the case in Class 2 buildings and Class 4 parts.

F6D2(c), with regard to Class 9a and 9c buildings, takes account of the fact that occupants will generally be in their beds throughout the day and natural light will be important to them.

It is considered desirable that school and pre-school children are able to view the outside environment, and work or play using natural light. Accordingly, buildings such as kindergartens and schools must provide natural light to playrooms and classrooms.

(1) Required natural light must be provided by—

  1. windows, excluding roof lights, that—
    1. have an aggregate light transmitting area measured exclusive of framing members, glazing bars or other obstructions of not less than 10% of the floor area of the room; and
    2. are open to the sky or face a court or other space open to the sky or an open verandah, carport or the like; or
  2. roof lights, that—
    1. have an aggregate light transmitting area measured exclusive of framing members, glazing bars or other obstructions of not less than 3% of the floor area of the room; and
    2. are open to the sky; or
  3. a proportional combination of windows and roof lights required by (a) and (b).

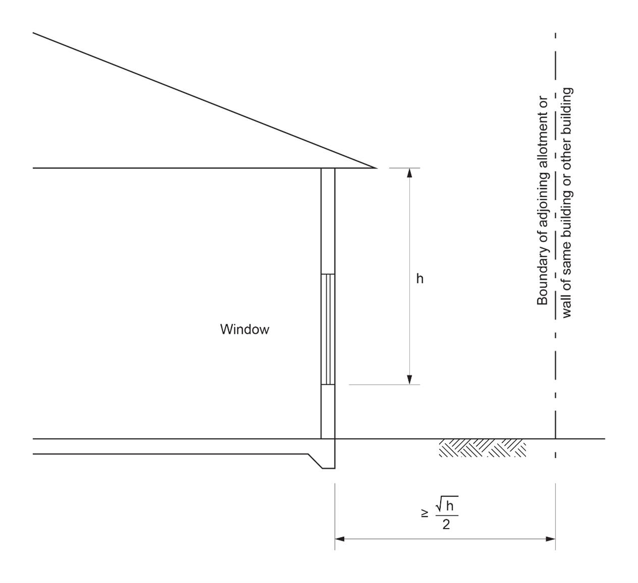
(2) Except in a Class 9c aged care building, in a Class 2, 3 or 9 building or Class 4 part of a building, a required window that faces a boundary of an adjoining allotment or a wall of the same building or another building on the allotment must not be less than a horizontal distance from that boundary or wall that is the greater of—

  1. generally — 1 m; and
  2. in a patient care area or other room used for sleeping purposes in a Class 9a building — 3 m; and
  3. 50% of the square root of the exterior height of the wall in which the window is located, measured in metres from its sill.

(3) In a Class 9c aged care building, a required window must be transparent and located—

  1. in an external wall with the window sill not more than 1 m above the floor level; and
  2. where the window faces an adjoining allotment, another building or another wall of the same building, it must not be less than a horizontal distance of 3 m from the adjoining allotment, other building or wall.

(4) In a Class 9b early childhood centre, the sills of 50% of windows in children's rooms must be located not more than 500 mm above the floor level.

To specify the requirements for the size and location of windows, including roof lights to provide required natural light.

F6D3 Methods and extent of natural light

A window includes roof lights, glassed louvres and glazed doors (see definition in Schedule 1).

F6D3(1)(a) sets out the requirement for natural light provided by windows other than roof lights. F6D3(1)(b) sets out the requirement for natural light provided by roof lights.

A roof light generally receives greater exposure to sunlight than a window because of its orientation to the sky and consequently, the size of a roof light as a percentage of the floor area served is permitted to be smaller than for a window serving the same floor area.

To achieve the requirements for natural light when both windows and roof lights are provided, a proportional combination of F6D3(1)(a) and (b) can be used through F6D3(1)(c). This is explained in Figure F6D3a below.

Figure F6D3a: Method for determining proportional combination of windows and roof lights

Image
Figure F6D3a:	Method for determining proportional combination of windows and roof lights

Description of Figure F6D3a

Area of the room which requires natural light is 100 m2. No natural light borrowed from adjoining rooms.

General requirements

Required windows to provide natural light must have a light transmitting area of at least 10% of the floor area. 10% of 100 m2 = 10 m2

Or, roof lights to provide natural light must have a light transmitting area of at least 3% of the floor area. 3% of 100 m2 = 3 m2

In the formula below, 3% of the floor area is expressed as the fraction 0.03 and 10% of the floor area is expressed as the fraction 0.1.

Formula—for the area of window(s) required to compensate for roof light shortfall

Area of room covered by the roof light = (Area of roof light)/ 0.03

Required window(s) area = [(Floor area) – (Area covered by the roof light)] / 10

Area of windows required to compensate for roof light shortfall

If the roof light = 1 m2

Area of room covered by the roof light = (1 m2 / 0.03) = 33.33 m2 Required window(s) area = (100 m2 – 33.33 m2) / 10 = 6.67 m2

Formula—for the area of roof lights required to compensate for window(s) shortfall

Area of room covered by the window(s)= (Area of window(s)) / 0.1

Required roof light area = [(Floor area) – (Area covered by the window)]/ 33.33

Area of roof lights required to compensate for window shortfall

If the window= 5 m2

Area of room covered by the window(s)= (5 m2 / 0.1 m2) = 50 m2 Required roof lights area = (100 m2 – 50 m2) / 33.33 m2 = 1.5 m2

Notes

For the purposes of Figure F6D3a, a window excludes a roof light.

The same proportional calculation principle applies if—

  • two or more windows are used; or
  • two or more roof lights are used.

All windows, both required and non-required, must comply with the various requirements of the BCA’s fire-safety provisions, such as C4D3 openings in external walls, and S5C16 for roof lights.

F6D3(2) does not prohibit windows closer to the boundary than one metre (or three metres in the case of a patient-care area in a Class 9a building). However, if a window is located within these distances, F6D3(2) does not allow it to be considered as providing required natural light to the subject room.

It should be noted that F6D3(2) does not apply to Class 9c buildings. F6D3(3) contains specific provisions for these buildings.

Figure F6D3b illustrates the method of measuring the distance of the window from:

  • an adjoining allotment boundary;
  • a wall of the same building; and
  • a wall of another building on the same allotment.

Figure F6D3b: Elevation showing method of measuring distance of window from boundary

Image
Figure F6D3b: Elevation showing method of measuring distance of window from boundary

F6D3(3) contains requirements for Class 9c buildings. The requirement for the windowsill to be not more than 1 m above floor level and at least 3 m from an adjoining allotment, another building or wall is to maintain amenity for residents who spend a significant amount of time sitting on chairs or lying in bed.  Figure F6D3c illustrates the method of measuring these distances.

Figure F6D3c: Illustration of window sill in an aged care building

Image
Figure F6D3c: Illustration of window sill in an aged care building

F6D3(4) contains requirements for Class 9b early childhood centres. The well-being of children in these types of buildings is enhanced through improved interaction with the outdoor environment by the provision of 50% of window sills in children’s rooms required to be located not more than 500 mm above the floor level.

The following is not considered a children’s room:

  • a passageway or thoroughfare (including door swings);
  • a toilet and hygiene facilities;
  • a room permanently set aside for storage;
  • a room for staff or administration;
  • a kitchen, unless the use of the kitchen is part of an educational program provided by the service; or
  • any other space that is not suitable for children.

(1) Natural light to a room in a Class 2 building or Class 4 part of a building or in a sole-occupancy unit of a Class 3 building, may come through one or more glazed panels or openings from an adjoining room (including an enclosed verandah) if—

  1. both rooms are within the same sole-occupancy unit or the enclosed verandah is on common property; and
  2. the glazed panels or openings have an aggregate light transmitting area of not less than 10% of the floor area of the room to which it provides light; and
  3. the adjoining room has—
    1. windows, excluding roof lights, that—
      1. have an aggregate light transmitting area of not less than 10% of the combined floor areas of both rooms; and
      2. are open to the sky or face a court or other space open to the sky or an open verandah, carport or the like; or
    2. roof lights, that—
      1. have an aggregate light transmitting area of not less than 3% of the combined floor areas of both rooms; and
      2. are open to the sky; or
    3. a proportional combination of windows and roof lights required by (i) and (ii).

(2) The areas specified in (1)(b) and (c) may be reduced as appropriate if direct natural light is provided from another source.

To allow natural light to be “borrowed” from an adjoining room.

F6D4 Natural light borrowed from adjoining room

F6D4 applies only to a room in:

  • a Class 2 building;
  • a Class 4 part; or
  • a sole-occupancy unit in a Class 3 building.

For these Classes, it is sometimes acceptable for a room’s required natural light to be “borrowed” from an ad joining room (i.e. an adjoining room’s light can be used to help make up the total amount of natural light required in the subject room).

The use of borrowed light is acceptable if the provisions of F6D4 are applied to the subject room and to the total area of each relevant room.

Any borrowed natural light must be from an adjoining room over which occupants of the subject room have some control. F6D4(1)(a) therefore requires that the adjoining room be within the same sole-occupancy unit or be an enclosed verandah on common property.  As a consequence, the required natural light cannot be from another sole-occupancy unit.

Direct natural light provided from another source is intended to mean light from a window or roof light in the subject room. As the provision relates to natural light obtained from an adjoining room, ‘another source’ refers to direct natural light provided to the subject room which does not meet the required allowance of either 3% or 10% of the floor area for roof lights and windows respectively. By not meeting the required amount of natural light, the ‘direct natural light from another source’ can be used as a supplement to the natural light required from an adjoining room.

To borrow natural light from another room, F6D4(1)(b) allows light to pass through glazed panels or openings from an adjoining room which, under F6D4(1)(c), must have windows, roof lights or a combination of windows and roof lights of a minimum size in proportion to the combined floor areas of both rooms.  The minimum size of the glazed panels or openings, and the minimum size of the windows to the adjoining room, are illustrated in Figure F6D4.

If a doorway is used as an opening to obtain light from an adjoining room, any door is required to transmit natural light directly from outside a building to the room concerned when in the closed position (see Figure F6D4).

The area of openings needed to transmit natural light from an adjoining room may be reduced proportionally to the size of any openings in the subject room which transmit natural light directly from the outside.

Figure F6D4: Method for determining areas of openings for borrowed light

Image
Figure F6D4: Method for determining areas of openings for borrowed light

The same principle for Opening A in Figure F6D4 can be applied for roof lights by substituting the required 10% opening in respect to the combined floor area with 3% of the combined floor area. It is also permitted to use a proportional combination of windows and roof lights. See the example in the comments on F6D3 for an explanation.

(1) Artificial lighting must be provided—

  1. in required stairways, passageways, and ramps; and
  2. if natural light of a standard equivalent to that required by F6D3 is not available, and the periods of occupation or use of the room or space will create undue hazard to occupants seeking egress in an emergency, in—
    1. a Class 4 part of a building — to sanitary compartments, bathrooms, shower rooms, airlocks and laundries; and
    2. a Class 2 building — to sanitary compartments, bathrooms, shower rooms, airlocks, laundries, common stairways and other spaces used in common by the occupants of the building; and
    3. Class 3, 5, 6, 7, 8 and 9 buildings — to all rooms that are frequently occupied, all spaces required to be accessible, all corridors, lobbies, internal stairways, other circulation spaces and paths of egress.

(2) The artificial lighting system must comply with AS/NZS 1680.0.

(3) The system may provide a lesser level of illumination to the following spaces during times when the level of lighting would be inappropriate for the use:

  1. A theatre, cinema or the like, when performances are in progress, with the exception of aisle lighting required by Part I1.
  2. A museum, gallery or the like, where sensitive displays require low lighting levels.
  3. A discotheque, nightclub or the like, where to create an ambience and character for the space, low lighting levels are used.

To specify the location and other requirements for required artificial lighting.

F6D5 Artificial lighting

Artificial lighting is required where it is necessary to minimise any hazard to occupants during an emergency evacuation.

F6D5(1)(a) sets out those places where artificial lighting is always required. However, it does not require such lighting to be illuminated at all times.

F6D5(1)(b) sets out those places where artificial lighting is required if the standard of natural light required by F6D3 is unavailable, and the periods of occupation of the areas, or the use of the space, will create an undue hazard during an evacuation.

Determination of whether or not the periods of occupation of the specified areas will create an undue hazard during an evacuation is a judgement, which requires a “performance-type” assessment.

Class 4 parts of buildings are subject to F6D5(1)(b) only with regard to wet areas and airlocks. (Any required stairways and the like in the rest of the building, which contains the Class 4 part, are required to be artificially lit under F6D5(1)(a)).

Class 2 buildings are subject to F6D5(1)(b) with regard to wet areas, airlocks and any common areas such as stairways, etc. used in common by occupants.

Class 3 and Class 5–9 buildings are subject to F6D5(1)(b) with regard to all rooms frequently occupied, and all corridors, stairways and similar circulation routes and paths of egress. Unless they are “frequently occupied”, wet areas (including those in Class 3 buildings) are not subject to F6D5(1)(b).

Apart from the “performance-type” judgement regarding the location of artificial lighting in those areas specified in F6D5(1)(b), the remainder of the requirements are contained in the AS/NZS 1680.0 specified in F6D5(2).

F6D5(3) gives a concession for compliance with F6D5(1) in specific buildings which have lower levels of lighting as part of their normal operation. For example, the lighting levels specified in AS/NZS 1680.0 would be inappropriate during the screening of a movie in a cinema or may lead to damage of artworks in a gallery.

NCC Blurbs

A habitable room, office, shop, factory, workroom, sanitary compartment, bathroom, shower room, laundry and any other room occupied by a person for any purpose must have—

  1. natural ventilation complying with F6D7; or
  2. a mechanical ventilation or air-conditioning system complying with AS 1668.2.

Notes

The reference to AS/NZS 3666.1 is deleted from the BCA in NSW, as the need to comply with this standard is regulated in the Public Health Regulation 2012, under the Public Health Act 2010.

NCC Title
Ventilation of rooms
NCC State
NSW
NCC Variation Type
Replacement
NCC SPTC Current
Ventilation of rooms
NCC Blurbs

A habitable room, office, shop, factory, workroom, sanitary compartment, bathroom, shower room, laundry and any other room occupied by a person for any purpose must have—

  1. natural ventilation complying with F6D7; or
  2. a mechanical ventilation or air-conditioning system complying with AS 1668.2 and AS/NZS 3666.1; or
  3. in a storage shed or bulk grain storage facility, a ventilation system that provides one air change every six hours using openings that have a total area of the lesser of—
    1. 35 m2; or
    2. one percent of the total floor area.
NCC Title
Ventilation of rooms
NCC State
SA
NCC Variation Type
Replacement
NCC SPTC Current
Ventilation of rooms

A habitable room, office, shop, factory, workroom, sanitary compartment, bathroom, shower room, laundry and any other room occupied by a person for any purpose must have—

  1. natural ventilation complying with F6D7; or
  2. a mechanical ventilation or air-conditioning system complying with AS 1668.2 and AS/NZS 3666.1.

To state the natural and mechanical ventilation requirements for rooms and buildings.

F6D6 Ventilation of rooms

The specified rooms and buildings, and any other room occupied by a person for any purpose, must be provided with either:

  • natural ventilation complying with F6D7; or
  • mechanical ventilation or an air-conditioning system that complies with both of the standards referenced in F6D6(b).

If a room or building is served by a mechanical ventilation or air-conditioning system for heating or cooling purposes and the system does not provide ventilation in accordance with AS 1668.2, then the room or building must also be provided with natural ventilation complying with F6D7. Natural ventilation would therefore need to be provided to rooms served by a typical domestic type wall mounted air-conditioning split system. In addition, F6D6 does not preclude natural ventilation serving a room or building if it is also served by a mechanical ventilation or air-conditioning system compliant with AS 1668.2.

(1) Natural ventilation provided in accordance with F6D6(a) must consist of openings, windows, doors or other devices which can be opened—

  1. with a ventilating area not less than 5% of the floor area of the room required to be ventilated; and
  2. open to—
    1. a suitably sized court, or space open to the sky; or
    2. an open verandah, carport, or the like; or
    3. an adjoining room in accordance with F6D8.

(2) The requirements of (1)(a) do not apply to a Class 8 electricity network substation.

To specify the requirements for the size and location of windows providing required natural ventilation.

F6D7 Natural ventilation

F6D7 requires that permanent openings, windows, doors or other openable means provide natural ventilation. It also deals with the size of such openings, and the locations to which such openings must open.

F6D7(1)(b)(i) requires a judgement regarding what is “suitably sized”; and F6D7(1)(b)(ii) requires a judgement regarding what is “open”.

F6D7 does not require any of the required natural ventilation to be “fixed ventilation” or “permanent openings” as against “devices which can be opened”. The building proponent can make the decision.

If the natural ventilation openings are used only for ventilation purposes, roller shutters and doors can cover the openings if they achieve the performance standard in F6D7(1). However, if the openings are also used for egress purposes, they must comply with the requirements of provisions such as D3D24 and D3D26.

Under F6D7(2), the option of using prescribed natural ventilation opening sizes for Class 8 electricity network substations is removed. The prescribed ventilation openings are not conducive to Class 8 electricity network substations as they may allow excessive dust, humidity and other weather conditions that are detrimental to the sensitive and hazardous equipment used in these buildings.

Natural ventilation to a room may come through a window, opening, door or other device from an adjoining room (including an enclosed verandah) if both rooms are within the same sole-occupancy unit or the enclosed verandah is common property, and—

  1. in a Class 2 building, a sole-occupancy unit of a Class 3 building or Class 4 part of a building—
    1. the room to be ventilated is not a sanitary compartment; and
    2. the window, opening, door or other device has a ventilating area of not less than 5% of the floor area of the room to be ventilated; and
    3. the adjoining room has a window, opening, door or other device with a ventilating area of not less than 5% of the combined floor areas of both rooms; and
  2. in a Class 5, 6, 7, 8 (except a Class 8 electricity network substation) or 9 building—
    1. the window, opening, door or other device has a ventilating area of not less than 10% of the floor area of the room to be ventilated, measured not more than 3.6 m above the floor; and
    2. the adjoining room has a window, opening, door or other device with a ventilating area of not less than 10% of the combined floor areas of both rooms; and
  3. the ventilating areas specified in (a) and (b) may be reduced as appropriate if direct natural ventilation is provided from another source.

To allow natural ventilation to be “borrowed” from adjoining rooms.

F6D8 Ventilation borrowed from adjoining room

F6D8(a) applies only to:

  • Class 2 buildings;
  • Class 4 parts; and
  • sole-occupancy units in Class 3 buildings.

Except for Class 8 electricity network substations, F6D8(b) applies only to Class 5–9 buildings.

It is sometimes acceptable for a room’s required natural ventilation to be “borrowed” from an adjoining room (i.e. an adjoining room’s ventilation can be used to help make up the total amount of ventilation required).

The use of borrowed ventilation is acceptable if the provisions of F6D8 are applied to the subject room and to the total area of each relevant room.

Any borrowed natural ventilation to a room must be from a room over which the occupants have some control. F6D8(a) therefore requires that the adjoining room be:

  • within the same sole-occupancy unit; or
  • an enclosed verandah on common property.

In a Class 2 or Class 3 building or Class 4 part, this requirement means that the natural ventilation cannot be from another sole-occupancy unit.

F6D8(a) and (b) allows a window, an opening, a door, or the like, to be used to “borrow” ventilation air from an adjoining room. The minimum area required for ventilation in residential buildings is illustrated in Figure F6D8.

In Class 5–9 buildings, the area of ventilation opening required under F6D8(b) is similar to that required for residential buildings, except that:

  • the area of ventilation opening must be increased from 5% to 10%; and
  • any part of the ventilation opening between the rooms more than 3.6 metres above the floor must not be included as part of the required ventilation area.

Under F6D8(c), the area of openings needed to transfer natural ventilation borrowed from an adjoining room may be reduced proportionally to the size of any window or other opening in the room which receives natural ventilation directly from the outside.

Figure F6D8: Method for determining areas of openings for borrowed ventilation

Image
Figure F6D8: Method for determining areas of openings for borrowed ventilation

A sanitary compartment must not open directly into—

  1. a kitchen or pantry; or
  2. a public dining room or restaurant; or
  3. a dormitory in a Class 3 building; or
  4. a room used for public assembly (which is not an early childhood centre, primary school or open spectator stand); or
  5. a workplace normally occupied by more than one person.

To minimise the impact of unpleasant smells.

F6D9 Restriction on location of sanitary compartments

While F6D9 prohibits toilets opening directly into specified areas, F6D10 sets out how toilets can serve those areas by using:

  • airlocks or airlock equivalents; or
  • mechanical exhaust ventilation and, in some cases, screening.

The odours from toilets can be unpleasant and so it is desirable to minimise their impact on adjacent areas such as:

  • a kitchen or pantry;
  • public-eating areas, but not domestic-eating areas (other than kitchens);
  • Class 3 building dormitories (but no other sleeping areas);
  • some assembly buildings (but not kindergartens, primary schools or open spectator stands); and
  • most workplaces.

The exclusions include sleeping areas other than Class 3 dormitories. In houses, flats, motels and hotels the odours are usually generated by the resident/s, whereas, in a dormitory there is a high likelihood that:

  • the odours are generated by unrelated people;
  • the toilet-use ratio is higher; and
  • there could also be a privacy issue.

Some other exclusions include kindergartens because staff need to keep children under continuous observation and open spectator stands because these are generally open to the air and therefore inherently well ventilated.

If a sanitary compartment is prohibited under F6D9 from opening directly to another room—

  1. in a sole-occupancy unit in a Class 2 or 3 building or Class 4 part of a building—
    1. access must be by an airlock, hallway or other room; or
    2. the sanitary compartment must be provided with mechanical exhaust ventilation; and
  2. in a Class 5, 6, 7, 8 or 9 building (which is not an early childhood centre, primary school or open spectator stand)—
    1. access must be by an airlock, hallway or other room with a floor area of not less than 1.1 m2 and fitted with self-closing doors at all access doorways; or
    2. the sanitary compartment must be provided with mechanical exhaust ventilation and the doorway to the room adequately screened from view.

To specify requirements for airlocks or mechanical ventilation where toilets open directly into other rooms.

F6D10 Airlocks

While F6D9 prohibits toilets opening directly into specified areas, F6D10 sets out how toilets can serve those areas by using:

  • airlocks or airlock equivalents; or
  • mechanical exhaust ventilation and, in some cases, screening.

It is desirable to minimise toilet odours in particular areas. See F6D9 and F6D10 for airlock and mechanical exhaust ventilation where a builder wishes to locate a toilet close to, or open directly into, the areas specified in F6D9.

Every storey of a carpark, except an open-deck carpark, must have—

  1. a system of mechanical ventilation complying with AS 1668.2; or
  2. a system of natural ventilation complying with Section 4 of AS 1668.4.

To specify ventilation requirements for carparks, to ensure car fumes are adequately removed.

F6D11 Carparks

F6D11 does not apply to an open-deck carpark because such carparks are provided with adequate, permanent, natural ventilation.

AS 1668.2 contains mechanical ventilation requirements for the Deemed-to-Satisfy Provisions.

A commercial kitchen must be provided with a kitchen exhaust hood complying with AS 1668.1 and AS 1668.2 where—

  1. any cooking apparatus has—
    1. a total maximum electrical power input exceeding 8 kW; or
    2. a total gas power input exceeding 29 MJ/hour; or
  2. the total maximum power input to more than one apparatus exceeds, per m2 of floor area of the room or enclosure—
    1. 0.5 kW electrical power; or
    2. 1.8 MJ/hour gas.

To minimise the spread of cooking odours and fire from commercial kitchens.

F6D12 Kitchen local exhaust ventilation

The aim of F6D12 is to:

  • reduce the prevalence of airborne fats, etc building up, and causing health and fire problems;
  • reduce steam and smoke from cooking processes; and
  • maintain the flow of air to reduce potentially obnoxious odours.

The figures in F6D12(a) relate to the size of any electrical or gas cooking apparatus, which may cause these problems.

The figures in F6D12(b) relate to the ratio of electrical or gas cooking apparatuses to room size, which may cause these problems.

The Deemed-to-Satisfy Provisions require exhaust hoods to comply with both AS 1668.1 and AS 1668.2.